Skip to Content
  • +1 201-693-4878
NJ Listing Media
  • Sign in
  • Contact Us
  • Home
  • Services
    • Real Estate Photography
    • Drone Photography and Video
    • Virtual Staging
    • Floorplans
    • 3D Tours
    • Social Media Marketing
  • Portfolio
  • Pricing
    • Commercial Price List
    • Featured Agent Price List
    • Standard Price List
  • Service Areas
    • Union County NJ
    • Essex County NJ
  • For Agents
  • Company
    • News
    • About Us
  • Contact us
NJ Listing Media
      • Home
      • Services
        • Real Estate Photography
        • Drone Photography and Video
        • Virtual Staging
        • Floorplans
        • 3D Tours
        • Social Media Marketing
      • Portfolio
      • Pricing
        • Commercial Price List
        • Featured Agent Price List
        • Standard Price List
      • Service Areas
        • Union County NJ
        • Essex County NJ
      • For Agents
      • Company
        • News
        • About Us
      • Contact us
    • +1 201-693-4878
    • Sign in
    • Contact Us

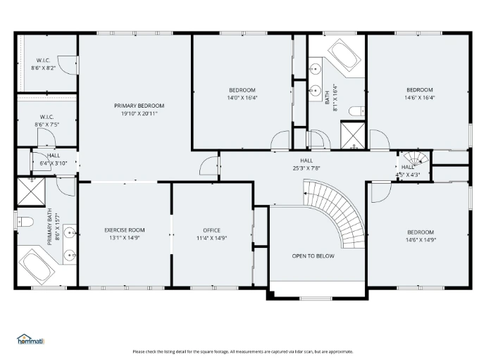
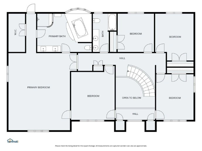
    Floorplans

    Buyers love floorplans - it makes a huge difference to the context of a home, especially if that home has a unique layout such has half floors, balconies or 'open to below' spaces. Make it easy for buyers to understand the layout and flow of a home with floorplans.

    Floorplans with Dimensions 

    Give buyers a better understanding of room layout and size by using floorplans with dimensions.  

     

    Floorplans without Dimensions 

    Are you promoting a floorplan using Social Media or anticipate that buyers are going to view them on a 'tiny' screen? Floorplans without dimensions give buyers context without clutter. 

     

    Guided Tour 

    Take your floorplan to the next level with our Guided Tours. These are floorplans set to pictures, so the buyer can click on a camera icon and see a picture of that room. 

     

    In partnership with agents

    We are a team of passionate people whose goal is to help agents win more listings, sell more homes, sell them faster and for more money. We aren't just photographers, we are your partner - helping you achieve your sales goals.

    Get in touch

    Hommati 273
    Anne Sofield 
    Serving Agencies in Essex and Union Counties, NJ

    • +1 (201) 693-4878
    • [email protected]
    Follow us

    Copyright © 2026 Hommati 273. All photographs and media displayed on this website are the copyrighted property of Hommati 273 and are used with permission by the listing agent for the purpose of marketing the specific property for which the images were created. Images may not be reproduced or used without written authorization.

    Powered by Odoo - Create a free website